•  
Objektnummer
1704

Zwischen Stadt und Natur – 4-Zimmer-Wohnung mit Balkon in Passau-Grubweg zum Kauf

Preise

Kaufpreis
245.000,00 EUR
Außen-Courtage
3,57% inkl. MwSt.
provisionspflichtig
Ja
verfügbar ab
unvermietet

Flächen

Etage
2
Wohnfläche
110 m²
Etagen
3
Etage
2
Anzahl Zimmer
4
Anzahl Schlafzimmer
4
Anzahl Badezimmer
2
Anzahl Stellplätze
1

Austattung

Einbauküche
Ja
Wanne
Ja
Dusche
Ja
Gäste WC
Ja
Tiefgarage
Ja
Parkett
Ja

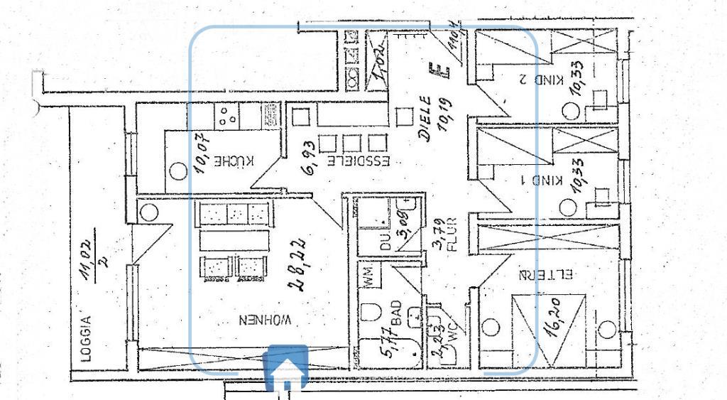
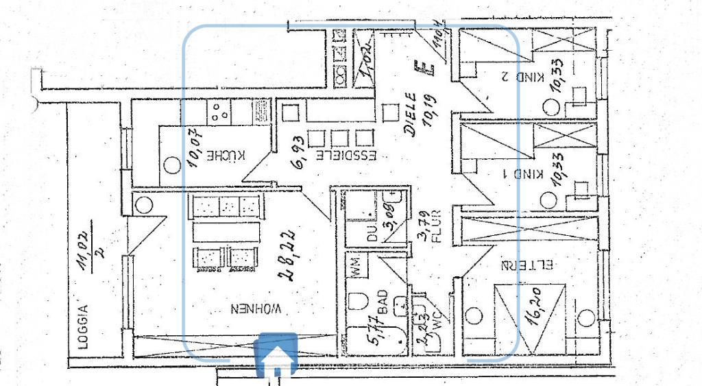
Objektbeschreibung

Willkommen in der Schulbergstraße – ruhig gelegen und doch bestens angebunden präsentiert sich diese gepflegte 4-Zimmer-Wohnung mit ca. 110 m² Wohnfläche als ideales Zuhause für Familien oder Paare mit Platzbedarf. Schon beim Eintreten überzeugt der großzügige Eingangsbereich, der Raum für Garderobe, Sideboard oder eine Leseecke bietet. Mittelpunkt der Wohnung ist das helle Wohnzimmer mit Parkettboden und Zugang zum weitläufigen West-Balkon – mit freiem Blick auf die Veste Oberhaus und ins Grüne. Die Küche ist mit einer gepflegten Einbauküche in zeitloser Holzoptik und allen relevanten Elektrogeräten ausgestattet. Zwei Bäder sorgen für Komfort im Alltag: Das Hauptbad verfügt über eine Badewanne und WC, das separate Duschbad über eine großzügige Dusche. Zusätzlich steht ein Gäste-WC zur Verfügung. Neben dem geräumigen Schlafzimmer bieten zwei weitere Zimmer flexible Nutzungsmöglichkeiten – als Kinder-, Arbeits- oder Gästezimmer. Ein Kellerabteil sowie ein Tiefgaragenstellplatz sind im Angebot enthalten.

Ausstattung

Die Highlights im Überblick: • Großzügige ca. 110 m² Wohnfläche mit durchdachter 4-Zimmer-Aufteilung • Weitläufiger West-Balkon mit Blick ins Grüne und zur Veste Oberhaus • Zwei komfortable Bäder + separates Gäste-WC – ideal für Alltag & Gäste • Gepflegtes Mehrparteienhaus in ruhiger, gewachsener Wohnlage • Tiefgaragenstellplatz und eigenes Kellerabteil bereits inklusive • Kurze Wege zu Schule, Kindergarten und Nahversorgung Ein Zuhause, das Platz bietet – und kurze Wege in die Stadt. • Wohnung und Tiefgaragenstellplatz gehören je zu separaten Eigentümergemeinschaften • Das Hausgeld (Wohnung) beträgt 480,00 EUR (inkl. 200,00 EUR Rücklagen-Anteil) • Das Hausgeld (Tiefgarage) beträgt 244,00 EUR (inkl. 104,17 EUR Rücklagen-Anteil)

Lage

Grubweg, im Osten von Passau gelegen, ist ein vielseitiger Stadtteil, der durch seine Nähe zur Innenstadt, seine gute Infrastruktur und eine ruhige Wohnlage überzeugt. Mit dem Auto erreicht man das Stadtzentrum in ca. 7 Minuten, mit dem Fahrrad in ca. 20 Minuten. Einkaufsmöglichkeiten und Infrastruktur: Im Stadtteil stehen zahlreiche Einkaufsmöglichkeiten zur Verfügung. Zusätzlich gibt es kleinere Läden, Apotheken und weitere Dienstleister. Schulen und Kindergärten sind ebenfalls gut erreichbar. Öffentliche Verkehrsanbindung: Grubweg ist optimal an das Passauer Verkehrsnetz angebunden. Die Buslinien 13 sowie 3/4 verkehren regelmäßig und bieten eine schnelle Verbindung ins Stadtzentrum sowie in andere Stadtteile. Verkehrsanbindung mit dem Auto: Grubweg liegt verkehrsgünstig in der Nähe wichtiger Straßen. Die Bundesstraße B12 führt direkt durch den Stadtteil und bietet schnelle Verbindungen in die Innenstadt sowie in umliegende Regionen. Zudem sorgt die Nähe zur B388 und zur Autobahn für eine unkomplizierte Erreichbarkeit weiterer Städte und Orte.

Sonstiges

Besichtigungen sind nur nach vorheriger Absprache mit unserem Büro möglich. Senden Sie uns einfach eine Kontaktanfrage - wir melden uns anschließend telefonisch bei Ihnen. Wir freuen uns auf einen Besichtigungstermin mit Ihnen!

Energieausweis

  • Heizung
    Zentral
  • Befeuerung
    Gas
  • Energiepasstyp
    Verbrauch
  • Baujahr
    1974
  • Mit Warmwasser
    Ja
  • Gültig bis
    12.02.2028
  • Energieverbrauchskennwert
    111.40 kWh/(m²*a)
  • Energieeffizienzklasse
    D
    • A+
    • A
    • B
    • C
    • D
    • E
    • F
    • G
    • H
    0 25 50 75 100 125 150 175 200 225 >250

    Beispielausgaben

    Kauf
    Ja
    Miete/Pacht
    Nein

    Ansprechpartner

    Frau
    Grupp, Charlotte
    Tel.: +49 851 95647-157
    Grundriss

    Anfrageformular

    Pflichtfelder*

    Mit der Eingabe Ihrer persönlichen Daten und dem Absenden des Anfrageformulares erklären Sie sich mit unseren Datenschutzbestimmungen einverstanden.

    Kontaktformular

    Diese Webseite verwendet Google Maps. Um hier die Google Maps Karte zu sehen, stimmen Sie bitte zu, dass diese vom Google-Server geladen wird. Ggf. werden hierbei auch personenbezogene Daten an Google übermittelt. Weitere Informationen finden sie hier.

    Karte anzeigen