•  
Objektnummer
1708

Zuhause mit Aussicht – 2-Zimmer-Wohnung mit Charakter und Potenzial in Passau-Neustift

Preise

Kaufpreis
166.500,00 EUR
Außen-Courtage
3,57% inkl. MwSt.
provisionspflichtig
Ja

Flächen

Etage
4
Wohnfläche
53 m²
Etagen
7
Etage
4
Anzahl Zimmer
2
Anzahl Schlafzimmer
2
Anzahl Badezimmer
1

Austattung

Kabel Sat TV
Ja
Fliesen
Ja

Objektbeschreibung

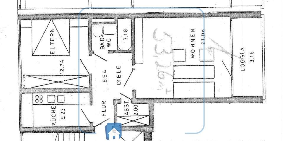
Ob zur Eigennutzung oder als Kapitalanlage – diese renovierte 2-Zimmer-Wohnung im 4. Obergeschoss eines gepflegten Mehrparteienhauses vereint Komfort, Helligkeit und gute Anbindung in einer der beliebtesten Wohnlagen Passaus. Auf rund 53 m² erwartet Sie ein durchdachter Grundriss mit hellen Räumen und angenehmer Wohnatmosphäre. Der einladende Eingangsbereich wird durch ein Glaselement zum Wohnzimmer charmant mit Tageslicht versorgt. Der Wohnbereich öffnet sich zur sonnigen Süd-West-Loggia – ein wunderbarer Platz für entspannte Stunden am Nachmittag oder Abend. Die gepflegte Einbauküche fügt sich funktional in das Gesamtbild ein. Das Schlafzimmer liegt ruhig zur Ostseite und ermöglicht erholsamen Schlaf bei Morgensonne. Praktisch: Ein separater Abstellraum sowie ein Kellerabteil sorgen für zusätzlichen Stauraum. Das Badezimmer wartet auf frischen Wind – und lässt Ihnen dabei gestalterischen Spielraum ganz nach Ihrem Geschmack. Eine gelungene Kombination aus Lage, Potenzial und Wohnqualität – perfekt für alle, die das gewisse Etwas suchen.

Ausstattung

Highlights auf einen Blick: • Ca. 53,26 m² Wohnfläche • 2 Zimmer • Balkon in sonniger Süd-West-Ausrichtung • Freundlicher Eingangsbereich mit Glaselement • Küche mit gepflegter Einbauküche • Schlafzimmer in ruhiger Ostlage • Separater Abstellraum & Kellerabteil • Badezimmer mit Modernisierungspotenzial • Auch zur Vermietung attraktiv • Das Hausgeld beträgt 246,00 EUR (inkl. 75,45 EUR Rücklagen-Anteil)

Lage

Neustift, einer der beliebtesten Stadtteile Passaus, überzeugt durch seine ruhige Lage und die gute Anbindung an die Innenstadt und umliegende Regionen. Im Westen Passaus gelegen, bietet Neustift eine gelungene Mischung aus viel Natur, einer gut ausgebauten Infrastruktur und einer angenehmen Wohnumgebung. Neustift befindet sich mit dem Auto ca. 8 Minuten vom Stadtzentrum entfernt. Mit dem Fahrrad ca. 20 Minuten. Öffentliche Verkehrsanbindung: Der Stadtteil ist optimal an den öffentlichen Nahverkehr angebunden. Mehrere Buslinien (7, 8/9, 10, 11, K4) verbinden Heining regelmäßig mit dem Passauer Stadtzentrum und anderen Stadtteilen. Die Bushaltestellen sind gut erreichbar und machen das Pendeln einfach und bequem. Einkaufsmöglichkeiten und Infrastruktur: Für den täglichen Bedarf ist in Heining bestens gesorgt. Supermärkte, Bäckereien, Apotheken und Ärzte befinden sich in unmittelbarer Nähe. Verkehrsanbindung mit dem Auto: Die Auffahrten A3 und A92 sind schnell mit dem Auto zu erreichen. Die Autobahnen bieten eine schnelle Verbindung nach Österreich, Deggendorf und München.

Sonstiges

Das Blockheizkraftwerk wurde nach einem Brand 2022 neu eingebaut. Der Energieausweis weist noch die zerstörte Heizanlage aus. Besichtigungen sind nur nach vorheriger Absprache mit unserem Büro möglich. Senden Sie uns einfach eine Kontaktanfrage - wir melden uns anschließend telefonisch bei Ihnen. Wir freuen uns auf einen Besichtigungstermin mit Ihnen!

Energieausweis

  • Heizung
    Zentral
  • Befeuerung
    Block
  • Energiepasstyp
    Verbrauch
  • Baujahr
    1971
  • Mit Warmwasser
    Ja
  • Gültig bis
    04.03.2028
  • Energieverbrauchskennwert
    104.50 kWh/(m²*a)
  • Energieeffizienzklasse
    D
    • A+
    • A
    • B
    • C
    • D
    • E
    • F
    • G
    • H
    0 25 50 75 100 125 150 175 200 225 >250

    Beispielausgaben

    Kauf
    Ja
    Miete/Pacht
    Nein

    Ansprechpartner

    Frau
    Grupp, Charlotte
    Tel.: +49 851 95647-157
    Grundriss

    Anfrageformular

    Pflichtfelder*

    Mit der Eingabe Ihrer persönlichen Daten und dem Absenden des Anfrageformulares erklären Sie sich mit unseren Datenschutzbestimmungen einverstanden.

    Kontaktformular

    Diese Webseite verwendet Google Maps. Um hier die Google Maps Karte zu sehen, stimmen Sie bitte zu, dass diese vom Google-Server geladen wird. Ggf. werden hierbei auch personenbezogene Daten an Google übermittelt. Weitere Informationen finden sie hier.

    Karte anzeigen